Lavanya... residences by RMS Infra

Kilpauk, Chennai - 600010, TN Featured

 Description

Lavanya

residences by RMS Infra

At the heart of everything we do is YOU. Nestled in the multicultural neighbourhood of Kilpauk, Lavanya brings you limitless freedom and seamless connectivity. Meticulously planned 17 signature homes with a great living experience like none other in Chennai. 

 

Rera No TN/29/Building/0503/2024 dated 22.10.2024
Site Address - New No 236, Kilpauk Garden Lane, Kilpauk, Chennai - 600 010

 Share

Facebook   Tweet

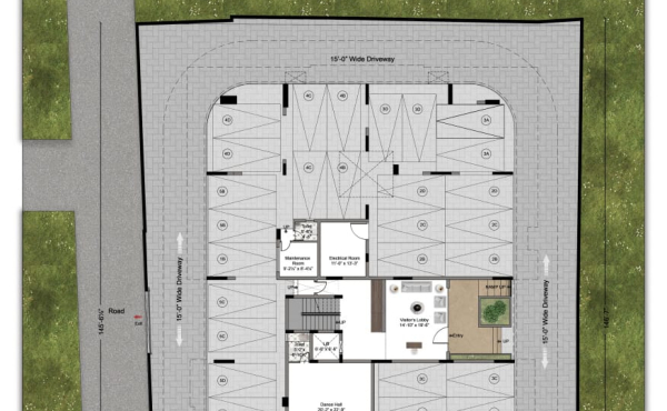
 Floor Plans

 Elevations

  • Lavanya... Residences by RMS Infra

 Features

 Specification

Specification

Structure

RCC framed structure Concrete with brick/Aerocon wall masonry.

Plastering

All internal walls smoothly plastered.

Painting

Emulsion for the interiors. Weather proof paint for exteriors and common areas.

Floor Finishes

Imported Marble for Living, family and dining rooms.

 Laminated wooden flooring for master bedroom.

Vitrified tiles for other bed rooms.

Anti-skid tiles - Kitchen and balconies.

Granite for Common area and for staircase.

Door

Main Entrance door- Teak wood polished  frame and Teak door.

Other doors -Panel doors  with  Veneer finish with both sides polish.

Toilet Doors -One side polish and one side lamination.

Hardwares

Main door - Brass Hinges & fittings.

Other doors and windows - Brass Hinges & fittings.

Windows       

Frames and shutters – UPVC Windows

Staircase Handrail          

MS grill with wooden handrails.

Toilets wall and floor finishes

Anti-skid ceramic floor tiles for flooring with designer glazed wall tiles.

Sanitary ware and fixtures

White Kohler /equivalent.

Kitchen             

Granite platform with stainless steel sink and drain board.

2 ft. Glazed tiles dado above kitchen platform.

Entrance lobby

Elegant entrance lobby with granite/ imported marble.

Electrical

Concealed conduits with good quality copper wire- Legrand or equivalent.

Elegant modular electrical switches.

For safety, one Earth Leakage Circuit Breaker (ELCB) for each apartment.

HVAC

VRV air conditioners will be provided in living, dining and in all bedrooms.

Lift

One 10 passenger lift make Johnson/OTIS or equivalent will be provided.

Power back up

100 % power back up will be provided.

Piped Gas Connection

Each apartment will be provided with one piped gas connection.

Surveillance

Security cameras for entrance and common areas.

Video door phones.

Solar Power

Solar power for common areas as per CMDA norms.

EV Charger

One EV charger provision per apartment will be provided.

Landscaped garden.

Landscaped garden will be done as per Landscape architect’s design.

Pressure Pump

For Shower areas.

Television,Telephone  & Modem Points

One TV point in living room and all bed rooms.

Telephone points in living and all bedrooms.

Modem points in all bedrooms and living rooms.

Other features

Provision for fixing water purifier.

Hot / cold water connections for all toilets.

Common underground sump, bore well and overhead tank.

 Key Distances

Key Distances
Category Land Mark Distance in
Kms
Airport Airport, Meenambakkam 17.3
Railway Station Egmore Railway Station 3.7
  Central Railway Station 5.7
Market Aminijikarai Market 0.2
Transport Koyambedu 6
Entertainment/ Shopping Express Avenue Mall, Whites Rd 6.3
Ampa Skywalk Mall, 4.2
Hospitals Apollo Hospital, Greams
road
1
MGM Healthcare, Nelson
Manickam Rd
4.5
Educational institutions Bhavan's Rajaji Vidyashram 200 mtrs
Chinmaya Vidyalaya 500 mtrs
CSI Bain school 1 km
Mahirishi Vidyamnadir , 2 kms

  Request more Details

 
 
rmsbottom

RMS Infrastructure Private Limited

MS Office
45/2, College Road, Nungambakkam,
Chennai - 600006,
Tamil Nadu.
Phone: +91 44 282 10180 / +91 44 282 10181
E-Mail: admin@msoffice.co.in

© 2025 RMS Infrastructure Private Limited. All Rights Reserved. Site by ZudioZ